Beschrijving

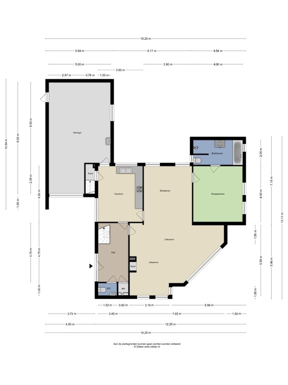
Omschrijving Riante vrijstaande woning met slaapkamer en badkamer op de begane grond en een garage op een perceel van 618  m2 aan de Diemenlaan 45 in Emmeloord. Deze vrijstaande woning ligt in een rustig deel van de wijk De Zuidert . De ruime tuin biedt veel privacy en aan de voorkant heeft u een vrij en uniek uitzicht. Emmeloord fungeert als “Polderhoofdstad” van de Noordoostpolder en heeft daardoor een zeer uitgebreid voorzieningenaanbod. U vindt hier alle denkbare basis- en middelbare scholen, een uitgebreid winkelaanbod, bioscoop, theater, medische voorzieningen, diverse horeca-gelegenheden, sportfaciliteiten en kerken. In het Emmelerbos, op de golfclub Emmeloord, in het recreatiegebied Wellerwaard of in het nabij gelegen Werelderfgoed Schokland en het natuurpark Netl, kunt u heerlijk ontspannen en recreëren. Emmeloord is gunstig gelegen nabij de A6 en N50. Amsterdam, Utrecht, Leeuwarden en Groningen zijn binnen een uur met de auto bereikbaar. Zwolle, Kampen en Lelystad binnen een half uur. In het centrum is een busstation met lijndiensten in alle richtingen. Deze vrijstaande woning staat op een ruime kavel van 618 m2 die ligt in de rustige woonwijk “De Zuidert ”. Het woonoppervlak is 232  m2 en de inhoud bedraagt 811 m3. De woning heeft een slaapkamer met een eigen badkamer en toilet op de begane grond. De woonkamer heeft een gezellige open haard en schuifpui naar de serre . Door de grote raampartijen is er veel lichtinval en een ruim uitzicht. daarnaast ligt de extra ruime garage met zolder. Op de verdieping zijn nog 3 in grootte variërende slaapkamers en een tweede badkamer. De woning met bouwjaar 1980, is kwalitatief goed gebouwd en onderhouden. Het buitenschilderwerk is van 2023.  Dit huis is volledig geïsoleerd en heeft Energielabel B. Buiten De grote achtertuin ligt op het noorden , en biedt veel privacy. U kunt altijd kiezen of u in de zon of juist in de schaduw wilt zitten. In de achtertuin staat ook nog een tuinhuisje en een Jacuzzi . Aan de voorkant heeft u een vrij uitzicht . Parkeren kan in de garage maar ook op de eigen oprit is nog plaats voor 2 auto’s. Daarnaast kan er ook geparkeerd worden langs de straat. Indeling woning Begane grond: - entree - Ruime hal met meterkast en vaste trap naar de verdieping - Toilet, toegankelijk vanuit de hal   - Slaapkamer met badkamer en-suite - Badkamer met douche, wastafel met badkamermeubel en bad - L-vormige woonkamer met open haard en schuifpui naar de tuin-serre  - Keuken is  voorzien van diverse inbouwapparatuur - Bijkeuken/berging met een aanrechtblad en wasmachine- en -drogeraansluiting en vaste kast met CV-opstelling (2023) - Garage, in spouw gemetseld, met zolder en  garagedeur  1e verdieping: - Overloop met dakraam - 3 slaapkamers, - Badkamer met toilet, douche en wastafel Kenmerken/pluspunten van deze woning - Slaapkamer en badkamer op de begane grond, dus levensloopbestendig - Vrije ligging aan de voorzijde - Uniek uitzicht - Ruime vrijstaande woning - Ruime aangebouwde garage - Grote tuin met veel privacy en zon en schaduwmogelijkheden - Rustig gelegen in woonwijk - Supermarkt in de wijk aanwezig
20 zonnepanelen op het dak

Kenmerken